IBC
0

Склад «Industrial City Ключ I (корп. A, URBAN U1)» — аренда и продажа

  • Московская область
  • Север
  • Площадь от 6 285 м2
  • Ставка аренды от 18 000 ₽

Общая информация

  • Подтип Light Industrial
  • Статус объекта Строящийся
  • Дата ввода в эксплуатацию 2026
  • Квартал ввода 4 квартал
  • Общая площадь здания 35 308 м2
  • Направление Север

Технические характеристики

  • Шаг колонн 12x18; 16x24
  • Высота потолка 8; 10
  • Нагрузка на пол 5
  • Кросс-док Нет
  • Система пожаротушения Спринклерная
  • Температурный режим +16 - Сухой
  • Количество ворот 750

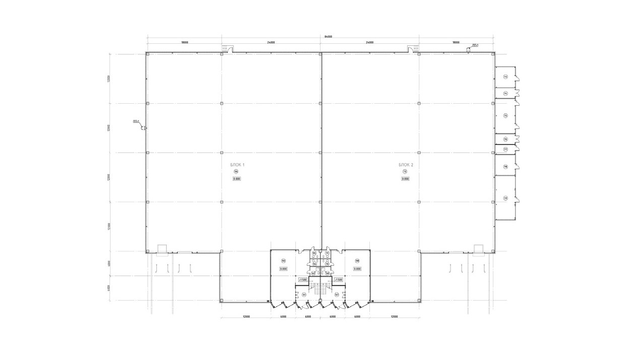
Вакантные опции

  • Корпус А, Боксы 3-34

    • Площадь 25 831 м2
    • Ставка аренды 18 000 ₽

    Склад 25831 м2 Корпус А, Боксы 3-34

    • Свободная площадь блока от 25 831 м2
    • Площадь склада от 25 831,05 м2
    • Тип сделки Аренда
    • Цена продажи по запросу
    • Цена за м2 по запросу
    • НДС Нет
    • Схема сделки по запросу
    • Базовая ставка 12 754 ₽
    • Операционные расходы 2 000 ₽
    • НДС Нет
    • Ставка аренды all-in 18 000 ₽
    • Доступен 01.10.2026

Тренды и аналитика

Офисы
Склады
Ритейл
Гостиницы
Инвестиции
  • Стоимость строительства офисов за год выросла на 15% и достигла 215 тыс. руб. / кв. м
    • Офисы
    • Москва
    • Россия
    • 13 апреля 2026

    Стоимость строительства офисов за год выросла на 15% и достигла 215 тыс. руб. / кв. м

    По данным консалтинговой компании IBC Real Estate и аналитического центра STONE, по итогам I квартала 2026 года стоимость строительства офисного объекта класса А составила 215 тыс. руб./кв. м общей площади здания с учетом НДС, увеличившись на 15% г/г. При пересчете на полезную показатель достигает 380 тыс. руб. / кв. м. Самый высокий рост продемонстрировали затраты на проектирование и фасады, которые увеличились на 100% и 30% год к году соответственно
  • Инвесторы сократили активность в офисах
    • Инвестиции
    • Москва
    • Россия
    • 07 апреля 2026

    Инвесторы сократили активность в офисах

    Доля офисной недвижимости, которая два года подряд лидировала в объеме инвестиций, снизилась год к году  в 2,4  раза
  • Отельеры Москвы стимулируют спрос
    • Гостиницы
    • Москва
    • Россия
    • 06 апреля 2026

    Отельеры Москвы стимулируют спрос

    За первые два месяца 2026 года столичные отельеры снизили тарифы для привлечения большего числа гостей, в результате чего загрузка отелей выросла год к году на 2 п.п., достигнув 68%
  • Стоимость строительства офисов за год выросла на 15% и достигла 215 тыс. руб. / кв. м
    • Офисы
    • Москва
    • Россия
    • 13 апреля 2026

    Стоимость строительства офисов за год выросла на 15% и достигла 215 тыс. руб. / кв. м

    По данным консалтинговой компании IBC Real Estate и аналитического центра STONE, по итогам I квартала 2026 года стоимость строительства офисного объекта класса А составила 215 тыс. руб./кв. м общей площади здания с учетом НДС, увеличившись на 15% г/г. При пересчете на полезную показатель достигает 380 тыс. руб. / кв. м. Самый высокий рост продемонстрировали затраты на проектирование и фасады, которые увеличились на 100% и 30% год к году соответственно
  • Санкт-Петербург прирастает сервисными офисами
    • Офисы
    • Санкт-Петербург
    • Россия
    • 29 января 2026

    Санкт-Петербург прирастает сервисными офисами

    За 2025 год рынок сервисных офисов Санкт-Петербурга увеличился на 3,3 тыс. кв. м или 0,4 тыс. рабочих мест, 70% этих площадей пришлось на Центральный субрынок

  • Офисный девелопмент наращивает объемы в деловых локациях
    • Офисы
    • Москва
    • Россия
    • 22 декабря 2025

    Офисный девелопмент наращивает объемы в деловых локациях

    Девелоперы офисной недвижимости не снижают своей активности на столичном рынке – к 2030 году в ключевых деловых районах Москвы может быть введено 1,4 млн кв. м офисов
  • Кто продает на маркетплейсах
    • Ритейл
    • Москва
    • Россия
    • 03 апреля 2026

    Кто продает на маркетплейсах

    Команда IBC Real Estate сформировала топ-10 продавцов, лидирующих по объему продаж на двух крупнейших онлайн-платформах – доля их продаж на OZON и Wildberries составляет 5% и 9% соответственно
  • Международные бренды занимают 21% площадей ТЦ Санкт-Петербурга
    • Ритейл
    • Санкт-Петербург
    • Россия
    • 31 марта 2026

    Международные бренды занимают 21% площадей ТЦ Санкт-Петербурга

    В крупнейших ТЦ Санкт-Петербурга насчитывается 268 магазинов зарубежных брендов, на долю которых приходится 70 тыс. кв. м или 21% от общего объема площадей
  • Одежда и товары для дома – лидеры онлайн-продаж
    • Ритейл
    • Москва
    • Россия
    • 16 марта 2026

    Одежда и товары для дома – лидеры онлайн-продаж

    В 2025 году более половины трат россиян в онлайн, 54% от общего объема продаж, пришлось на одежду и обувь, товары для дома и ремонта, бытовую технику и электронику
  • Инвесторы сократили активность в офисах
    • Инвестиции
    • Москва
    • Россия
    • 07 апреля 2026

    Инвесторы сократили активность в офисах

    Доля офисной недвижимости, которая два года подряд лидировала в объеме инвестиций, снизилась год к году  в 2,4  раза
  • Девелоперы возвращаются к земле
    • Инвестиции
    • Москва
    • Россия
    • 25 марта 2026

    Девелоперы возвращаются к земле

    Доля инвестиций в жилой сегмент впервые с 2022 года приблизилась к половине от общего объема вложений в недвижимость России
  • Жилые застройщики Санкт-Петербурга расширяют свои горизонты
    • Инвестиции
    • Санкт-Петербург
    • Россия
    • 22 января 2026

    Жилые застройщики Санкт-Петербурга расширяют свои горизонты

    В 2025 году объем инвестиций в недвижимость Северной столицы достиг 102 млрд руб., из которых 82 млрд руб. пришлись на коммерческую недвижимость, в том числе в результате того, что жилые застройщики стали выходить в новые для себя сегменты