- Главная
- Каталог объектов
- Офисы
- Продажа
- МАУНТ
Продажа офиса «МАУНТ»
Москва, ЗАО, Боровское шоссе, 2А
Общая информация
- Подтип Бизнес-центр
- Класс A
- Статус объекта Строящийся
- Дата ввода в эксплуатацию 2028
- Квартал ввода 1 квартал
- Общая площадь здания 37 254 м2
- Общая арендопригодная площадь 27 536 м2
- Общее количество парковочных мест 148
Технические характеристики
- Шаг колонн от 6х6 до 8х8
- Высота потолка 3,5
- Грузовой лифт Да
- Сертификаты Сертифкации нет
- Доступная мощность 2 280
- Вентиляция Да
- Кондиционеры Да
Описание
- Фото
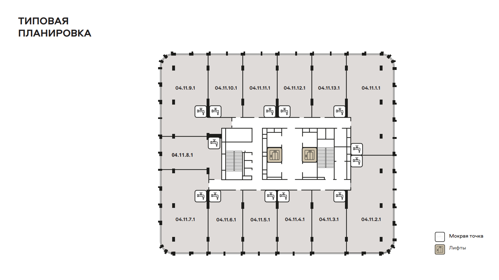
- Планировка
- Карта
- Класс A
- Офисы
- Купить
Тренды и аналитика
Офисы
Склады
Ритейл
Гостиницы
Инвестиции
-
- Офисы
- Москва
- Россия
- 13 апреля 2026
Стоимость строительства офисов за год выросла на 15% и достигла 215 тыс. руб. / кв. м
По данным консалтинговой компании IBC Real Estate и аналитического центра STONE, по итогам I квартала 2026 года стоимость строительства офисного объекта класса А составила 215 тыс. руб./кв. м общей площади здания с учетом НДС, увеличившись на 15% г/г. При пересчете на полезную показатель достигает 380 тыс. руб. / кв. м. Самый высокий рост продемонстрировали затраты на проектирование и фасады, которые увеличились на 100% и 30% год к году соответственно -
- Инвестиции
- Москва
- Россия
- 07 апреля 2026
Инвесторы сократили активность в офисах
Доля офисной недвижимости, которая два года подряд лидировала в объеме инвестиций, снизилась год к году в 2,4 раза -
- Гостиницы
- Москва
- Россия
- 06 апреля 2026
Отельеры Москвы стимулируют спрос
За первые два месяца 2026 года столичные отельеры снизили тарифы для привлечения большего числа гостей, в результате чего загрузка отелей выросла год к году на 2 п.п., достигнув 68%
-
- Офисы
- Москва
- Россия
- 13 апреля 2026
Стоимость строительства офисов за год выросла на 15% и достигла 215 тыс. руб. / кв. м
По данным консалтинговой компании IBC Real Estate и аналитического центра STONE, по итогам I квартала 2026 года стоимость строительства офисного объекта класса А составила 215 тыс. руб./кв. м общей площади здания с учетом НДС, увеличившись на 15% г/г. При пересчете на полезную показатель достигает 380 тыс. руб. / кв. м. Самый высокий рост продемонстрировали затраты на проектирование и фасады, которые увеличились на 100% и 30% год к году соответственно -
- Офисы
- Санкт-Петербург
- Россия
- 29 января 2026
Санкт-Петербург прирастает сервисными офисами
За 2025 год рынок сервисных офисов Санкт-Петербурга увеличился на 3,3 тыс. кв. м или 0,4 тыс. рабочих мест, 70% этих площадей пришлось на Центральный субрынок
-
- Офисы
- Москва
- Россия
- 22 декабря 2025
Офисный девелопмент наращивает объемы в деловых локациях
Девелоперы офисной недвижимости не снижают своей активности на столичном рынке – к 2030 году в ключевых деловых районах Москвы может быть введено 1,4 млн кв. м офисов -
- Офисы
- Москва
- Россия
- 19 декабря 2025
Деловая среда Казахстана испытывает нехватку офисов
Доля свободных площадей в объектах классов А и В на офисном рынке Казахстана на начало декабря составила 4%, снизившись за год на 2 п.п. -
- Офисы
- Москва
- Россия
- 15 декабря 2025
Офисы Москвы вышли на рекорд по стартам продаж
На начало декабря маркетируемый объем офисных помещений в столице на старте продаж в 2,5 раза превысил аналогичный показатель год к году и достиг рекордного в истории рынка значения -
- Офисы
- Москва
- Россия
- 01 декабря 2025
В Петербурге дорожают офисы В-класса
Сегмент офисов класса B в Санкт-Петербурге продолжает демонстрировать рост арендных ставок, по итогам III квартала 2025 года он составил 17% год к году – до 1 916 руб./кв. м в месяц -
- Офисы
- Москва
- Россия
- 15 октября 2025
Вакансия в Москва-Сити не остановила рост ставок
Впервые с 2023 года уровень вакантности в Москва-Сити достиг 3,5% и на 1,6 п.п. превысил показатель год к году. Однако это увеличение не умерило рост арендных ставок – прирост год к году в офисах класса А составил 49%
-
- Офисы
- Москва
- Россия
- 29 сентября 2025
Офис с отделкой на вес «золота»
Качественные офисы с готовой отделкой становятся дороже. На фоне сохраняющегося роста цен затраты на отделку являются для многих девелоперов дополнительным риском, вследствие чего дефицит офисов классов А и Prime с готовой отделкой все более очевиден -
- Офисы
- Москва
- Россия
- 21 июля 2025
В Москва-Сити стало теснее и дороже
По итогам первой половины 2025 года уровень вакантности в офисах Москва-Сити приблизился к критическим значениям и составил 1,2% – за 10 лет доля свободных площадей снизилась в 14 раз -
- Офисы
- Москва
- Россия
- 08 июля 2025
Штаб-квартиры становятся собственностью
Почти четверть существующего объема офисов класса А на рынке Москве представлены штаб-квартирами в собственности, за 10 лет их объем увеличился в 2,5 раза -
- Офисы
- Санкт-Петербург
- Россия
- 02 июня 2025
Офисный девелопмент Северной столицы не успевает за спросом
Аналитики IBC Real Estate прогнозируют, что объем ввода офисной недвижимости на рынке Санкт-Петербурга по итогам 2025 года превысит показатель прошлого в 3 раза, однако это не закроет все потребности спроса -
- Офисы
- Москва
- Россия
- 30 мая 2025
Ставки аренды в Москва-Сити достигли 80 тыс. руб./кв. м в год
Запрашиваемые ставки для отдельных объектов класса Prime в Москва-Сити и Центральном деловом районе увеличились до 75-80 тыс. руб./кв. м в год. При этом, в целом по Москве темпы роста ставок начали постепенно замедляться -
- Офисы
- Москва
- Россия
- 28 мая 2025
Офисные девелоперы действуют по программе МПТ
К 2028 году объем нового строительства офисной недвижимости, реализуемой по программе МПТ, может достигнуть 1,6 млн кв. м. -
- Офисы
- Москва
- Россия
- 22 апреля 2025
Объем ввода новых офисов в Москве может не оправдать ожиданий
В I квартале 2025 года в столице был введен только один офисный объект класса В+ на 4 тыс. кв. м офисов, это менее 1% от общего прогнозируемого объема ввода в 2025 году -
- Офисы
- Москва
- Россия
- 18 марта 2025
Деловые районы Москвы: ставки вверх!
С января по март этого года деловые районы Москвы показали, в среднем, 30% рост запрашиваемых ставок аренды -
- Офисы
- Москва
- Россия
- 05 марта 2025
Почти половина вакантных офисов в Москве удалены от центра
48% вакантного предложения на столичном рынке офисной недвижимости составляют офисы по ставкам менее 25 тыс. руб./кв. м в год – это сильно удаленные от центра здания, в т. ч. за МКАД, с высокой вакансией и преимущественно без отделки. Доля качественных помещений класса А в центральных локациях составляет всего 19% -
- Офисы
- Алматы
- Казахстан
- 09 декабря 2024
В Казахстане не осталось свободных Prime офисов
По результатам III квартала 2024 года доля свободных качественных площадей на рынке офисной недвижимости Казахстана по классам А и В составляет 6%. Показатель продолжает активное снижение с 2022 года в связи с развитием бизнеса иностранными компаниями. В сегменте Prime вакансия уже равна 0
-
- Склады
- Москва
- Россия
- 17 марта 2026
Москва приросла низкотемпературными складами
Объем строительства низкотемпературных складов в Московском регионе вырос за год в 5 раз и достиг 275 тыс. кв. м -
- Склады
- Москва
- Россия
- 25 февраля 2026
Регионы приросли складами
Топ-10 крупнейших складских объектов, введенных в эксплуатацию в 2025 году, составили пятую часть от всего объема ввода по России, причем 8 из 10 расположены в регионах -
- Склады
- Москва
- Россия
- 19 февраля 2026
В Московском регионе потребовалось более 68,5 тысяч сотрудников для обслуживания новых складов
По итогам 2025 года объем ввода складских площадей формата Big-Box в Москве и МО составил 2,7 млн кв. м, из которых сдано или продано конечным пользователям 2 млн кв. м. Для обслуживания данного объема площадей потребовалось более 68,5 тыс. человек -
- Склады
- Санкт-Петербург
- Россия
- 16 февраля 2026
Спрос на склады подвинул Санкт-Петербург
Объем сделок со складской недвижимостью в Санкт-Петербурге и Ленинградской области по итогам 2025 года составил 272 тыс. кв. м и впервые за 10 лет откатился среди регионов России на третье место -
- Склады
- Москва
- Россия
- 09 февраля 2026
Новые склады составили треть спроса
По итогам 2025 года объем спроса на складскую недвижимость в Московском регионе составил 2,5 млн кв. м, 34% от этого объема (0,85 млн кв. м) – это сделки по аренде в объектах, введенных в эксплуатацию в 2021-2025 годах -
- Склады
- Москва
- Россия
- 19 декабря 2025
Статус технопарка повышает доходность строящихся офисов и объектов Light Industrial на 3% и 4% соответственно
Вакансия в действующих технопарках составляет всего 1% и не превышает этот уровень последние 3 года. Основное ограничение для удовлетворения повышенного спроса – это дефицит предложения. Государственные меры поддержки, направленные на стимулирование строительства технопарков, позволяют увеличить IRR (без учета кредита) в проектах Light Industrial – c 15,6% без наличия статуса до 19,3% (+3,7 п.п.) в технопарках, в офисных проектах – c 19,9% до 23,1% (+3,2 п.п.)
-
- Склады
- Москва
- Россия
- 17 ноября 2025
Спрос на складские площади сократился на треть
По итогам трех кварталов 2025 года объем сделок в России снизился на 27% по сравнению с аналогичным периодом прошлого года на фоне смещения фокуса игроков с расширения на оптимизацию использования складских площадей -
- Склады
- Санкт-Петербург
- Россия
- 07 ноября 2025
Складской рынок Санкт-Петербурга снизил аренду
Средневзвешенная ставка аренды на существующие склады класса А в Северной столице снизилась до уровня середины 2024 года, составив 10 500 руб./кв. м в год. Регион стал первым в России, где было зафиксировано снижение арендных ставок в складском сегменте -
- Склады
- Москва
- Россия
- 06 ноября 2025
Складской рынок Москвы демонстрирует прирост спекулятивного строительства
За 9 месяцев 2025 года в Московском регионе было введено в эксплуатацию более 1,9 млн кв. м складских площадей, из которых 72% составили спекулятивные объекты -
- Склады
- Москва
- Россия
- 01 октября 2025
Производственно-складской девелопмент в ожидании льгот
3,5 млн кв. м складов и производств, заявленных к строительству жилыми девелоперами, еще не получили соглашений по программе МПТ -
- Склады
- Москва
- Россия
- 17 сентября 2025
Столичный рынок Light Industrial демонстрирует двукратный прирост
В Московском регионе зафиксирован рекордный объем нового строительства объектов Light Industrial – с начала года в эксплуатацию введено 280 тыс. кв. м., а объем площадей на этапе строительства увеличился почти в 2 раза -
- Склады
- Москва
- Россия
- 25 августа 2025
Складской рынок России вышел за полгода на рекорд по вводу
За I полугодие 2025 года в России введено в эксплуатацию 2,7 млн кв. м складских площадей, что в 2 раза превысило значение год к году и стало максимальным показателем среди аналогичных периодов за всю историю развития рынка -
- Склады
- Алматы
- Казахстан
- 22 августа 2025
В Казахстане бум спекулятивного строительства складов
73% от общего объема введенных в эксплуатацию складов Казахстана составляют спекулятивные проекты -
- Склады
- Москва
- Россия
- 05 августа 2025
Высокий спрос на площади в технопарках формата Light Industrial при минимальном объеме свободных площадей
Спрос на аренду современных производственных объектов в Москве стремительно растет -
- Склады
- Москва
- Россия
- 31 июля 2025
Крупнейшие игроки онлайн-продаж заняли четверть складского рынка
По состоянию на июнь 2025 года 90% общего объема онлайн-продаж обеспечивают 20 крупнейших игроков, которые занимают 26% складских площадей по всей России -
- Склады
- Москва
- Россия
- 02 июля 2025
Ставки аренды на точке замерзания
На июнь 2025 года ставки аренды на низкотемпературные объекты в Москве и Московской области прекратили свой рост, зафиксировавшись на уровне декабря 2024 года – для объектов класса А - 18,5 тыс. руб./кв. м в год -
- Склады
- 27 июня 2025
Зарплаты складских работников умерили рост
За три года средняя предлагаемая заработная плата складских сотрудников в Москве и МО выросла в 2 раза, однако в 2025 году динамика прироста замедлилась и с начала 2025 года по май составила всего 1% -
- Склады
- Москва
- Россия
- 24 июня 2025
На складском рынке Москвы становится вакантно
Объем вакантных площадей в готовых складских объектах Московского региона увеличился за год более чем в 5 раз и достиг 1,1 млн кв. м -
- Склады
- Москва
- Россия
- 10 июня 2025
Стоимость строительства складских объектов продолжает свой рост
По итогам I квартала 2025 года стоимость строительства квадратного метра склада в ЦФО достигла нового исторического максимума, увеличившись за год на 20% -
- Склады
- Москва
- Россия
- 28 апреля 2025
Первый квартал показал рекорд ввода в складах
Региональная экспансия ритейлеров привела к рекордному объему введенных в эксплуатацию складских площадей в России по итогам I квартала 2025 года -
- Склады
- Москва
- Россия
- 25 февраля 2025
Объем ввода на рынке складской недвижимости превзошел все ожидания
По итогам 2024 года объем ввода складских площадей совокупно по России составил более 4,9 млн кв. м, индикатор стал историческим максимумом и превысил результат 2023 года на 21% -
- Склады
- Москва
- Россия
- 21 февраля 2025
Онлайн-операторы лидируют в структуре спроса на складском рынке
Несмотря на сокращение в 2024 году объемов реализованного спроса на рынке складской недвижимости, онлайн-операторы второй год подряд сохраняют повышенную активность -
- Склады
- Москва
- Россия
- 28 января 2025
Спрос со стороны инвесторов на покупку Light Industrial впервые превысил объемы ввода
Прошедший год стал годом повышенного внимания инвесторов к формату Light Industrial. По данным девелопера коммерческой недвижимости Parametr объем запросов на приобретение таких помещений со стороны инвесторов за 12 месяцев 2024 года превысил 340 тыс. кв. м. -
- Склады
- Москва
- Россия
- 18 декабря 2024
Арендные ставки на столичные склады за 5 лет выросли в 3 раза
С 2019 года ставка аренды на существующие склады в Москве и МО выросла на 205% – с 4 100 до 12 500 рублей за кв. м в год -
- Склады
- Алматы
- Казахстан
- 13 декабря 2024
Склады Казахстана устанавливают рекорд: объем нового строительства достиг исторического максимума
За период январь – ноябрь 2024 года в Казахстане введено в эксплуатацию 191 тыс. кв. м складов. Объем ввода превысил результат прошлого года почти в 2 раза. Активность локальных девелоперов сохраняется, потому в 2025 году ожидается ввод 277 тыс. кв. м площадей, что станет новым историческим рекордом на рынке складской недвижимости Казахстана
-
- Ритейл
- Москва
- Россия
- 03 апреля 2026
Кто продает на маркетплейсах
Команда IBC Real Estate сформировала топ-10 продавцов, лидирующих по объему продаж на двух крупнейших онлайн-платформах – доля их продаж на OZON и Wildberries составляет 5% и 9% соответственно -
- Ритейл
- Санкт-Петербург
- Россия
- 31 марта 2026
Международные бренды занимают 21% площадей ТЦ Санкт-Петербурга
В крупнейших ТЦ Санкт-Петербурга насчитывается 268 магазинов зарубежных брендов, на долю которых приходится 70 тыс. кв. м или 21% от общего объема площадей -
- Ритейл
- Москва
- Россия
- 16 марта 2026
Одежда и товары для дома – лидеры онлайн-продаж
В 2025 году более половины трат россиян в онлайн, 54% от общего объема продаж, пришлось на одежду и обувь, товары для дома и ремонта, бытовую технику и электронику -
- Ритейл
- Москва
- Россия
- 27 февраля 2026
Международный ритейл ушел в минимум
В крупнейших ТЦ Москвы доля международных брендов составляет сегодня лишь 30% -
- Ритейл
- Москва
- Россия
- 25 декабря 2025
Международные бренды сократили долю
В 2025 году международные бренды освободили на 81% больше торговых площадей, чем заняли -
- Ритейл
- Москва
- Россия
- 17 декабря 2025
Объем онлайн-продаж за 11 месяцев вырос на четверть
По итогам 11 месяцев 2025 года объем онлайн-продаж в России составил 12,8 трлн руб., увеличившись год к году на 23% в сопоставимых ценах, а до конца года может достигнуть 14,2 трлн руб -
- Ритейл
- Москва
- Россия
- 20 ноября 2025
Международные бренды замедляют экспансию, но увеличивают площади
В 2025 году на российский рынок вышло почти в два раза меньше международных брендов, чем в 2024. При этом, средняя площадь магазинов тех, кто пришел в этом году на рынок России оказалась в 1,5 раза больше, чем в прошлом -
- Ритейл
- Москва
- Россия
- 11 ноября 2025
В каких городах России самый качественный шоппинг?
В структуре распределения российских городов по обеспеченности качественными торговыми площадями Москва занимает пятое место, Санкт-Петербург – седьмое, а лидирует в ТОП-10 – Самара -
- Ритейл
- Москва
- Россия
- 07 октября 2025
Регионы России показали рекордный ввод ТЦ
По итогам трех кварталов 2025 года более половины объема введенных торговых центров пришлось на регионы России – 25 из 40 или 53% от общего объема -
- Ритейл
- Москва
- Россия
- 25 сентября 2025
Аутлеты наполняются российскими брендами
За 5 лет доля отечественных брендов в аутлет-центрах двух столиц составила почти половину от всего объема арендаторов. Уход в 2022 году международных игроков с российского рынка дал импульс к активному развитию локальных ритейлеров -
- Ритейл
- Москва
- Россия
- 10 сентября 2025
«Патрики» меняют концепцию
Почти половина действующих ресторанов на ключевых гастрономических улицах Москвы – проекты, открытые в течение последних 3 лет -
- Ритейл
- Москва
- Россия
- 18 августа 2025
Онлайн-ритейл демонстрирует устойчивый рост
За первые шесть месяцев 2025 года объем онлайн-продаж составил 6,5 трлн руб., увеличившись на 20% -
- Ритейл
- Москва
- Россия
- 07 августа 2025
Столичные ТЦ демонстрируют нестабильность
Доля свободных площадей в торговых центрах Москвы по итогам I полугодия 2025 года увеличилась до 10%, при этом в структуре по типам ТЦ показатель различен -
- Ритейл
- Москва
- Россия
- 29 июля 2025
Иностранные бренды замедляют экспансию
По итогам I полугодия 2025 года темп выхода новых международных брендов на российский рынок снизился на 46% год к году -
- Ритейл
- Москва
- Россия
- 23 июля 2025
Доля ТЦ и гостиниц в проектах МПТ пока минимальна
Из 6,7 млн кв. м недвижимости, возводимой по программе МПТ, на торговую и гостиничную приходится всего 380 тыс. кв. м или 6% общей площади по подписанным соглашениям -
- Ритейл
- Москва
- Россия
- 14 июля 2025
Девелоперы выбирают районные ТЦ
По итогам первого полугодия 2025 года доля районных торговых центров в общем объем качественной торговой недвижимости Москвы составила 5%. За 10 лет показатель увеличился на 3 п.п. -
- Ритейл
- Москва
- Россия
- 07 июля 2025
Ввод ТЦ в Москве покажет максимум
С начала года по июнь в Москве введено 90 тыс. кв. м качественной торговой недвижимости, что является рекордным объемом в аналогичных периодах за последние пять лет, до конца года к вводу запланировано еще около 200 тыс. кв. м, что также станет максимальным значением с 2021 года -
- Ритейл
- Москва
- Россия
- 04 июля 2025
Петровка и Столешников переулок: все еще люкс?
Количество люксовых брендов на двух главных fashion-улицах столицы сократилось после ухода международных игроков -
- Ритейл
- 16 июня 2025
Fashion и кино уходят в онлайн
Структурные изменения в сегменте розничной торговли трансформируют пространства ТЦ и подходы арендаторов -
- Ритейл
- Москва
- Россия
- 19 мая 2025
Онлайн-продажи набирают темп
85% россиян совершают покупки онлайн чаще 1 раза в месяц -
- Ритейл
- Москва
- Россия
- 12 мая 2025
Покупатели все чаще идут за продуктами в онлайн
По итогам I квартала 2025 года объем онлайн-продаж в категории продуктов питания достиг 396 млрд руб., увеличившись за 5 лет в 2,5 раза -
- Ритейл
- Санкт-Петербург
- Россия
- 10 апреля 2025
В Санкт-Петербурге прогнозируют рекордный ввод ТЦ
В 2025 году рынок торговой недвижимости Санкт-Петербурга может пополниться рекордным с 2013 года объемом новых качественных ТЦ -
- Ритейл
- Москва
- Россия
- 09 апреля 2025
В новых ТЦ Москвы стало свободнее
По итогам I кв. 2025 года уровень вакансии в торговых центрах столицы, открытых в 2023-2025 гг., вырос на 4 п.п. год к году и 27% -
- Ритейл
- Москва
- Россия
- 26 марта 2025
Онлайн-торговля замедляет темпы
Рынок онлайн-ритейла в России продолжает свое стремительное развитие, однако темпы роста в 2025 году станут более умеренными
-
- Ритейл
- Москва
- Россия
- 27 февраля 2025
Более 85% новых международных брендов в России делают ставку на онлайн
20 из 23 новых международных брендов, появившихся в России в 2024 году, активно развиваются в формате омниканальной модели – запускают собственные интернет-магазины, расширяют присутствие через маркетплейсы и специализированные мультибрендовые интернет-площадки -
- Ритейл
- Москва
- Россия
- 20 февраля 2025
Тренды ритейла в России: из 2024 – в 2025
Покупатель становится все более требовательным и искушенным, а скорость смены потребительского поведения продолжает наращивать обороты. Сегодня ритейлу – в лице как торговой недвижимости, так и самих ритейлеров, недостаточно отслеживать эти изменения, их необходимо предвосхищать. Поскольку удерживать внимание потребителей становится все сложнее, а многие потребности закрывает стремительно развившийся онлайн-ритейл, в 2024 году фокус внимания российского ритейла был направлен на создание качественного потребительского опыта и впечатлений – такая же тенденция сохранится в 2025 году -
- Ритейл
- Москва
- Россия
- 16 декабря 2024
Иностранные бренды замедлили свои темпы
В 2024 году новые международные бренды заняли в Москве в 15 раз меньше торговых площадей, чем в 2023: 6,1 тыс. – против 93,9 тыс. кв. м
-
- Гостиницы
- Москва
- Россия
- 06 апреля 2026
Отельеры Москвы стимулируют спрос
За первые два месяца 2026 года столичные отельеры снизили тарифы для привлечения большего числа гостей, в результате чего загрузка отелей выросла год к году на 2 п.п., достигнув 68% -
- Гостиницы
- Москва
- Россия
- 16 февраля 2026
Люксовые отели Москвы загрустили по гостям
Загрузка в люксовых отелях Москвы составила по итогам 2025 года 53%, снизившись год к году на 8 п.п. в результате сокращения въездного турпотока и потребительской активности локального спроса -
- Гостиницы
- Москва
- Россия
- 05 февраля 2026
Инвесторы основательно вложились в отели
Объем инвестиций в гостиничную недвижимость в 2025 году обновил рекорд последнего десятилетия, увеличившись год к году более чем в 1,5 раза -
- Гостиницы
- Москва
- Россия
- 16 января 2026
Рост номерного фонда гостиниц России способствует повышению доступности внутреннего туризма для россиян
Сегодня в России на этапе планирования и строительства находятся более 180 тыс. номеров. По итогам 2025 года в стране будет зафиксирован рекордный показатель по количеству размещенных лиц в коллективных средствах размещения – более 85 млн человек -
- Гостиницы
- Москва
- Россия
- 12 декабря 2025
Объем ввода новых отелей в России по итогам года продемонстрирует троекратный рост
По предварительным итогам совокупный номерной фонд введенных в эксплуатацию гостиниц по всей России в 2025 году составит 8,4 тыс. номеров, что превысит результат 2024 года на 199% и станет рекордным значением с 2018 года -
- Гостиницы
- Москва
- Россия
- 19 ноября 2025
Половина гольф-полей России приходится на две столицы
Количество регионов, обеспеченных инфраструктурой для игры в гольф, в России ограничено – гольф-поля существуют только в 18 регионах страны, причем 50% из них расположены в крупнейших регионах – Москве, Санкт-Петербурге, МО и ЛО -
- Гостиницы
- Санкт-Петербург
- Россия
- 27 октября 2025
Отели Санкт-Петербурга дорожают динамичнее московских
Стоимость проживания в гостиницах Санкт-Петербурга стремительно растет: за год средняя цена на номер увеличилась на 17% и достигла рекордных значений, в то время как в Москве рост составил всего 6% г/г. -
- Гостиницы
- Москва
- Россия
- 15 октября 2025
Отели приблизились к рекорду десятилетия
По итогам трех кварталов 2025 года в России открылось 25 гостиниц совокупным номерным фондом 5,2 тыс. номеров, что уже на 84% превысило результат за весь 2024 год -
- Гостиницы
- Москва
- Россия
- 11 августа 2025
Люксовые отели Москвы выросли в цене
Несмотря на снижение количества иностранных туристов в России люксовые отели столицы продемонстрировали прирост стоимости почти на четверть -
- Гостиницы
- Москва
- Россия
- 04 августа 2025
Спрос на оздоровительные курорты в России увеличился на 28% за 10 лет: исследование IBC Real Estate и УК «Альфа-Капитал»
Компания IBC Real Estate подготовила совместное исследование с Управляющей компанией «Альфа-Капитал» о рынке премиальных оздоровительных курортов -
- Гостиницы
- Санкт-Петербург
- Россия
- 17 апреля 2025
В Северной столице лидируют 4-звездочные отели
На сегодняшний день более половины объема предложения гостиничных объектов Санкт-Петербурга представлено 4* гостиницами, доля номерного фонда в которых составляет 69% -
- Гостиницы
- Москва
- Россия
- 03 апреля 2025
Отели 4* лидируют в столице
На сегодня половину всего объема действующих гостиничных объектов Москвы составляют отели 4*, которые так же лидируют и по объему номерного фонда с долей 48% -
- Гостиницы
- Москва
- Россия
- 24 февраля 2025
Темпы ввода номеров в подмосковных отелях сократились в 5 раз
Объем введенных номеров в Московской области в 2020-2024 годах снизился на 80% по сравнению с результатами 2010-2014 годов, когда в Подмосковье в среднем открывались более 600 номеров ежегодно -
- Гостиницы
- Москва
- Россия
- 18 декабря 2024
Москва двукратно приросла отелями
Объем нового строительства в сегменте гостиничной недвижимости в 2024 году превзошел результаты прошлого в два
-
- Инвестиции
- Москва
- Россия
- 07 апреля 2026
Инвесторы сократили активность в офисах
Доля офисной недвижимости, которая два года подряд лидировала в объеме инвестиций, снизилась год к году в 2,4 раза -
- Инвестиции
- Москва
- Россия
- 25 марта 2026
Девелоперы возвращаются к земле
Доля инвестиций в жилой сегмент впервые с 2022 года приблизилась к половине от общего объема вложений в недвижимость России -
- Инвестиции
- Санкт-Петербург
- Россия
- 22 января 2026
Жилые застройщики Санкт-Петербурга расширяют свои горизонты
В 2025 году объем инвестиций в недвижимость Северной столицы достиг 102 млрд руб., из которых 82 млрд руб. пришлись на коммерческую недвижимость, в том числе в результате того, что жилые застройщики стали выходить в новые для себя сегменты -
- Инвестиции
- 20 января 2026
Инвестиции в недвижимость России вошли в баланс
Объем инвестиций в недвижимость России в 2025 году сократился на 29%, но оказался сопоставим с результатом 2023 года и более чем в 3 раза превысил среднегодовые значения 2016–2021 гг. -
- Инвестиции
- Москва
- Россия
- 29 декабря 2025
Инвестиции не сдаются
Несмотря на снижение объема инвестиционных вложений в недвижимость России относительно двух предыдущих лет, в динамке последнего десятилетия 2025 год вошел в ТОП-3 по инвестиционной активности -
- Инвестиции
- Санкт-Петербург
- Россия
- 24 декабря 2025
Инвестиции в недвижимость Санкт-Петербурга демонстрируют спад
В 2025 году объем инвестиций в недвижимость Северной столицы сократился в два раза по сравнению с предыдущим годом -
- Инвестиции
- Москва
- Россия
- 13 ноября 2025
Инвестиции в недвижимость скорректировали прогноз
Объем инвестиционных вложений в недвижимость России на середину ноября составил 712 млрд руб, приблизившись к годовому значению в 750 млрд руб., которое прогнозировалось в первой половине года -
- Инвестиции
- Москва
- Россия
- 28 октября 2025
Розничные ЗПИФы недвижимости стремительно увеличивают количество метров
Объем недвижимости в розничных ЗПИФах достиг отметки в 4,7 млн кв. м, увеличившись с начала года почти на треть -
- Инвестиции
- Санкт-Петербург
- Россия
- 20 октября 2025
Инвесторы Санкт-Петербурга сменили приоритеты
Структура инвестиционных вложений в недвижимость Санкт-Петербурга в 2025 году претерпела кардинальные изменения, в фокусе внимания инвесторов – коммерческая недвижимость с совокупной долей в общем объеме вложений 70%, когда как доля жилой недвижимости сократилась вдвое по сравнению с прошлым годом. -
- Инвестиции
- Москва
- Россия
- 13 октября 2025
Москва будущего по программе МПТ
В Москве в рамках программы МПТ будет построено 6,8 млн кв. м современной недвижимости, что обеспечит рабочими местами более 310 тысяч человек -
- Инвестиции
- Москва
- Россия
- 03 октября 2025
Инвестиции в недвижимость удерживают позиции
Объем инвестиций в недвижимость Москвы по итогам трех кварталов 2025 года достиг 448 млрд руб. и уже превысил значение за аналогичный период 2023 года. В структуре вложений второй год подряд лидирует офисная недвижимость -
- Инвестиции
- Санкт-Петербург
- Россия
- 14 июля 2025
Четверть инвестиционных вложений в недвижимость Санкт-Петербурга приходятся на ЗПИФ
Объем инвестиций в недвижимость Санкт-Петербурга с участием УК ЗПИФ увеличился на 22% год к году и составил четверть от общего объема вложений -
- Инвестиции
- Москва
- Россия
- 04 июля 2025
Вложения в недвижимость демонстрируют отрицательную динамику
Объем инвестиций в недвижимость России в I полугодии 2025 года сократился на 38%, по сравнению с результатом за аналогичный период прошлого года, показав снижение по сравнению с предыдущими периодами -
- Инвестиции
- Москва
- Россия
- 01 июля 2025
Девелоперы жилья стали меньше интересоваться землей
Объем инвестиций в участки под жилье сократился в России в 4 раза по сравнению с прошлым годом -
- Инвестиции
- Москва
- Россия
- 02 июня 2025
Девелоперы идут на торги
Доля приобретений недвижимости на торгах в общем объеме инвестиционных вложений увеличилась в динамике 5 лет до 24%, превысив 56 млрд руб -
- Инвестиции
- Москва
- Россия
- 15 мая 2025
ЗПИФы жилья набирают популярность
С конца 2023 года прирост в объеме недвижимых активов рыночных ЗПИФов в сегменте жилья составил 85% или 203 тыс. кв. м в абсолютных значениях -
- Инвестиции
- Москва
- Россия
- 07 апреля 2025
Инвестиции в недвижимость России сложились по-крупному
Объем инвестиций в недвижимость России в 1 квартале 2025 года вырос на 31%, при этом почти половина показателя обеспечена двумя крупными офисными сделками в Москве -
- Инвестиции
- Санкт-Петербург
- Россия
- 03 апреля 2025
Инвестиции в недвижимость СПб оказались в плюсе
Объем вложений в недвижимость Санкт-Петербурга в I квартале 2025 года вырос на 29% и достиг 25 млрд руб -
- Инвестиции
- Санкт-Петербург
- Россия
- 19 декабря 2024
Инвестиции в недвижимость Санкт-Петербурга снова в плюсе
Объем инвестиционных вложений в недвижимость Санкт-Петербурга в 2024 году вырос на 15%, при этом доля сделок с активами иностранных инвесторов по сравнению с прошлым годом сократилась в 3 раза